Секционные противопожарные ворота с классом огнестойкости EI60
Гарантия
1 год на весь товар
Доставка из Москвы
от 2 до 4 дней
Доставка по ДНР
Бесплатно
Установка специалистами
Оплачивается отдельно
Предоплата
Без предоплаты
от
88 586 ₽
Цена указана с НДС 20%

Консультация и заказ
Описание
Противопожарные секционные ворота применяются в качестве защиты от огня и распространения дыма в смежные с источником возгорания помещения. Противопожарные ворота изготавливаются из специальных огнеустойчивых панелей с минераловатной прослойкой и имеют конструкцию классических секционных ворот.
Конструкция
Конструкция

- Направляющая для полотна ворот
- Торсионный механизм
- Вал
- Верхний профиль
- Боковая опора с роликом
- Угловые стойки
- Кронштейн крепления горизонтальных направляющих к потолку
- Амортизатор
- Устройство защиты от обрыва пружины
- Барабан
- Верхний уплотнитель
- Петля
- Полотно ворот из сэндвич-панелей
- Боковая крышка
- Кронштейн с устройством защиты от обрыва троса
- Нижний профиль
- Нижний уплотнитель
Способы монтажа
Накладной монтаж с внутренней стороны
Стандартные конструктивные решения
![]() | ![]() | ![]() | ![]() | ![]() | ![]() | ![]() |
| Высокий подъем, вал снизу | Высокий подъем | Наклонный высокий проем | Стандартный наклонный проем | Стандартный проем | Высокий наклонный подъем, вал снизу | Вертикальный проем, вал снизу |
Технические характеристики
| Предел огнестойкости, мин | не менее 60 глухие |
| Приведенное сопротевление теплопередаче, м² *°С/Вт | не менее 0,4-0,8 |
| Безотказность, количество циклов открывания-закрывания | 20 000 |
| Звукоизоляция, дБ | до 20 |
| Вес полотна, кг/м2 | 22 |
| Усилие ручного открывания и закрывания, Н | не более 300 |
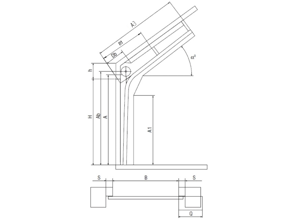
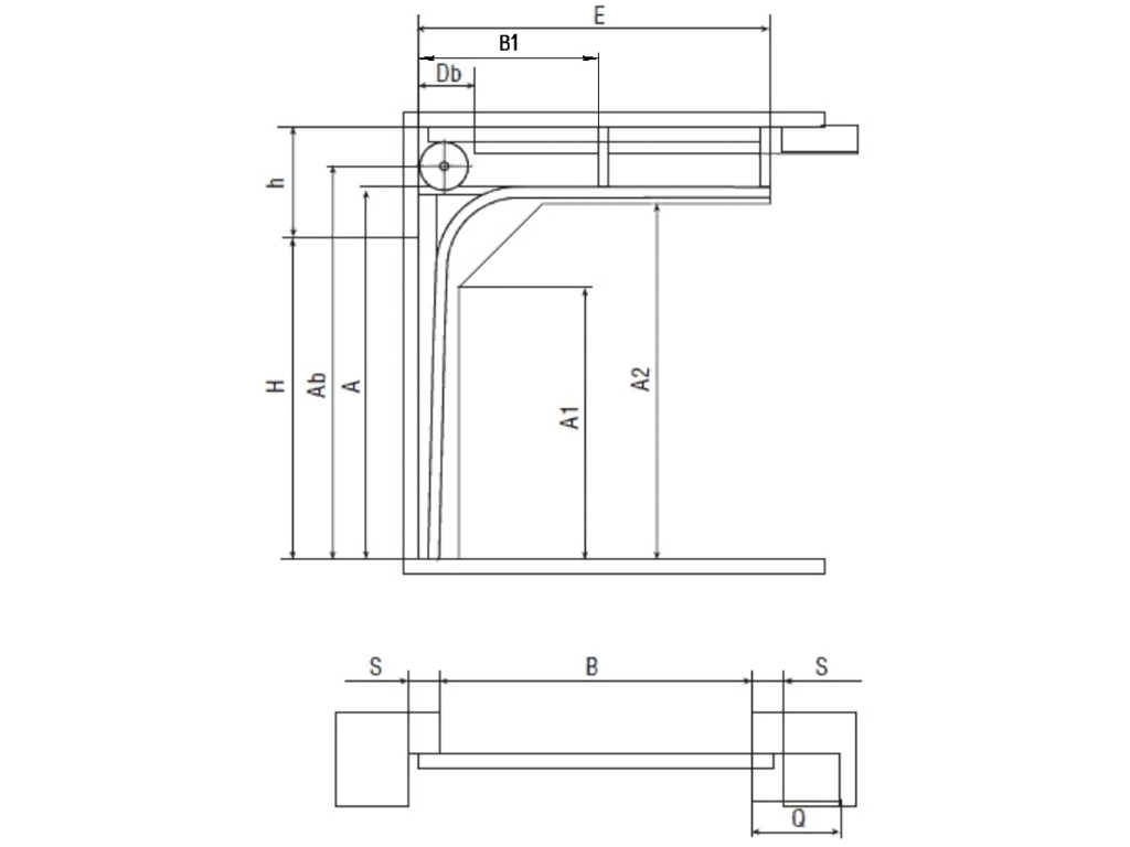
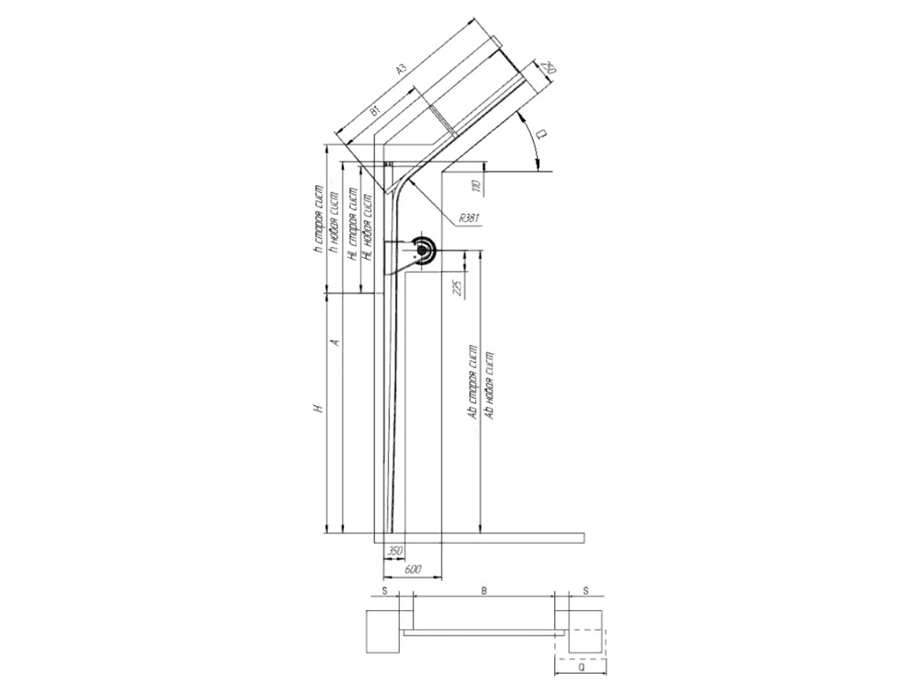
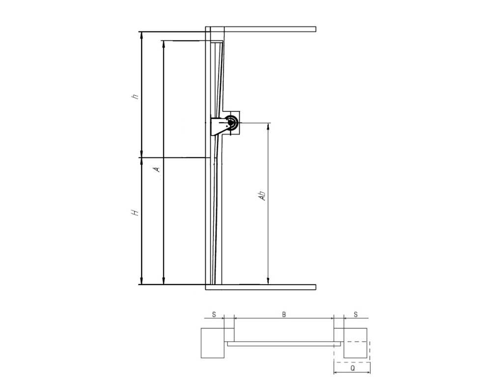
Размеры
| Ширина проема, мм | от 2000 до 6000* |
| Высота проема, мм | от 2000 до 6000* |
| Притолока, мм | от 650 |
| Пристенки, мм | от 300 |
| Глубина помещения, мм | высота помещения + 600 |
* — Размеры от 5000 мм по ширине и высоте требуют дополнительного согласования с конструктором
Внешний вид


По периметру противопожарных секционных ворот устанавливаются резиновый уплотнитель и терморасширяющаяся лента, которая при нагревании увеличивается и герметизирует ворота. Благодаря тому, что ворота открываются вверх и откатываются под потолок, они не занимают много места внутри помещения, оставляя свободное пространство у проема. Большой выбор типов подъема ворот позволяет устанавливать их в помещения с различными размерами притолоки.
Ворота спроектированы и изготовлены из высококачественных материалов с применением современных технологий. Они безопасны в использовании — в их конструкции предусмотрены защитные устройства от разрыва троса и обрыва пружины, обеспечивающие надежную работу и предотвращающие падение полотна ворот. Противопожарные секционные ворота DoorHan имеют более легкий вес по сравнению с аналогами, предлагаемыми на рынке. Они обладают высокой прочностью, термо- и звукоизоляцией, а также защитой от взлома. Для автоматизации противопожарных секционных ворот применяются электроприводы DoorHan. Противопожарные ворота DoorHan полностью отвечают требованиям российских строительных стандартов и имеют сертификаты соответствия.
Внешний вид

Полотно имеет фактурные шероховатости «Stucco» и может быть окрашено в любой из 11 стандартных цветов, или за дополнительную плату, в любой из RAL-цветов

Комплектация
Базовая комплектация
- Щит ворот из стальных сендвич-панелей толщиной 60 мм
- Окрашенные торсионные пружины
- Комплект боковых направляющих
- Устройство защиты от разрыва пружины
- Комплект крепежных элементов
- Амортизаторы









